Open space in vendita a Torino (TO) zona Crocetta

Rif: IMMO-123751153
Condividi Linkedin Whatsapp Stampa
€ 245.000
Open space
250 Mq
5 Vani
Classe energetica F
2 Camere
2 Bagni
Garage
Ascensore
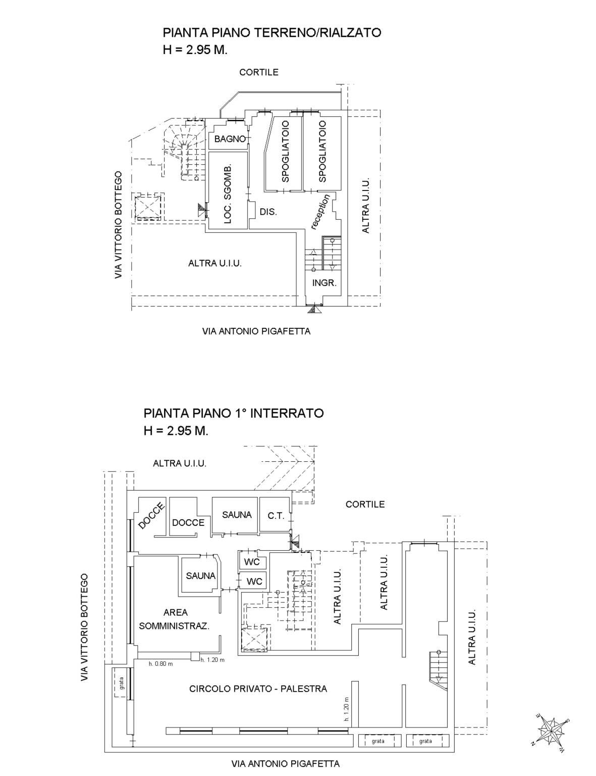
Vendesi appartamento bilocale di 55mq e magazzino seminterrato di mq 200 collegato da scala interna.
Immobile da ristrutturare , si presta a diverse soluzioni, dall'abitazione privata stile "loft"..... al business (palestra, studio medico) ottimo anche come studentato.
Proprietà dotata di doppi ingressi uno da condominio l'altro indipendente da via pigafetta.
In allegato vi sono le planimetria per verificare spazi.
Ottimo investimento!

Per maggiori Info rivolgersi in sede (+39)0119085856

Dettaglio immobile

Contratto Vendita
Rif IMMO-123751153
Prezzo € 245.000
Provincia Torino
Comune Torino
Zona Crocetta
Indirizzo Via Vittorio Bottego 5
Superficie 250 mq
Vani 5
Camere 2
Bagni 2
Classe energetica F (DL 192/2005)
EPI 175 kwh/m2 anno
Piano 1 / 6
Riscaldamento autonomo
Condizioni da ristrutturare
Spese condominiali € 250
Anno di costruzione 1970
Ascensore si
Garage singolo si
Cantina si
Cucina abitabile
Taverna si
Balcone si

Consistenze

Descrizione Superficie Sup. comm.
Principali
Immobile - piano rialzato 50 Mq 50 Mqc
Altro - seminterrato 200 Mq 200 Mqc
Totale 250 Mqc

Planimetrie

Richiedi maggiori informazioni

Autorizzazione al trattamento dei dati personali+
Dichiaro di aver letto l'informativa sulla privacy ed accetto le condizioni d'utilizzo del servizio.
Riempi il campo con il codice riportato nell'immagine*
Codice Captcha
Chiamaci Contattaci